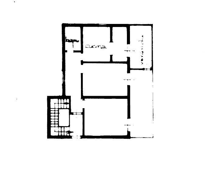
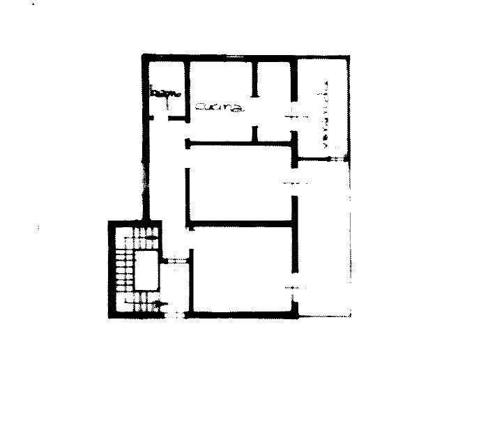
Codice AC0402 - MESTRE VIA SAN DONA' APPARTAMENTO CON TERRAZZA VIVIBILE E GARAGE
    Mestre, Via Passo Falzarego (laterale di Via San Donà), vendesi appartamento al 3° ed ultimo piano (senza ascensore) di un tranquillo e decoroso condominio di sole 8 unità. L'appartamento di 80 mq calpestabili, ha come vero punto di forza uan zona esterna di ben 30 mq funzionalmente suddivisa tra una ampia zona verandata utilizzata come estensione della zona giorno e fruibile tutto l'anno, ed una terrazza aperta ideale per momenti conviviali estivi o come angolo verde. L'appartamento è composto da ingresso, soggiorno, cucinotto, bagno, ampia camera matrimoniale ed una seconda stanza attualmente arredata a salotto ma tranquillamente utilizzabile come seconda camera matrimoniale.
    Completa la proprietà un garage al piano terra con ampio spazio di manovra e con apertura di 2,25 m. Riscaldamento autonomo, aria condizionata nuova, finestre in legno e vetrocamera con controfinestre. Classe energetica: G EP gl,nren 307,66 kwh/mq anno. Richiesta Euro 170.000. Rif. Agenzia AC0402. Per informazioni o visite Tiziana 393 3113131/ Michela 3200674650/ Ufficio 0413021699.
    • Prezzo
      170.000 EUR
    • Spese condominiali
      500 EUR
    • Classe
      G (307,66)
    • Locali
      4
    • Metri quadri
      107
    • Mq Box
      18
    • mq Terrazzo
      30
    • Stato Immobile
      Abitabile
    • Grado
      Medio
    • Posizione
      Centro
    • Panorama
      Vista Aperta
    • Piano
      Terzo
    • Orientamento
      Est Nord Ovest
    • Totale Piani
      Tre
    • Lati Liberi
      3
    • Giardino
      Cortile
    • Arredi
      Non Arredato
    • Tipo Soggiorno
      Sala da Pranzo
    • Tipo Cucina
      Semi Abitabile
    • Riscaldamento
      Autonomo
    • Tipo Riscaldam.
      Caldaia
    • Tipo Impianto
      Radiatori
    • Fonte Energetica
      Gas
    • Acqua Calda
      Autonoma
    • Raffrescamento
      Split
    • Infissi
      Legno Doppio Vetro
    • Serramenti
      Buono
    • Persiana
      Tapparella PVC
    • Pavim. Giorno
      Marmo
    • Pavim. Notte
      Graniglia
    • Pavim. Cucina
      Ceramica
    • Pavim. Bagno
      Ceramica
    • Accesso Disabili
      No
    • Accesso interno disabili
      Non accessibile
    • Isolamento
      Non presente
    • Isolamento termico
      Nessuno
    • Isolamento acustico
      Nessuno
    • Passo Falzarego 7, Venezia (VE)

    Richiedi informazioni

    • Autorizzo il trattamento dei miei dati personali in base Regolamento UE n. 679/2016 - Privacy Policy
    • Invia